
应用:平开 • 系列型材厚度:65 mm (窗), 70 mm (门)
MATRIX MD65
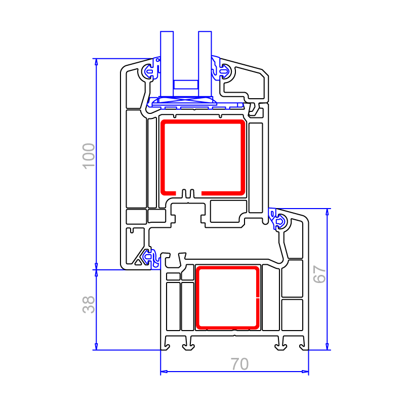
VEKA MATRIX MD65平开系列,属于MATRIX产品线,更适用于工程项目。优化的5腔三道密封设计,既满足大型高层项目的所有技术要求,也能符合预算限制。遵循维卡门窗系统质量及功能理念,维卡决定,在需要5腔型材的情况下,平开门使用70mm系列以强化其技术性能及耐用性。MATRIX MD65系列设计便于加工,目标针对Uw值1.8-2.5 W/m2.K及需要三道密封解决方案的市场。。
- 系列 Uf 1.4 W/m2.K (含增强型钢)
- 系列型材厚度65mm (窗), 70mm (门) ,5 腔
- 玻璃厚度范围 9mm – 39mm
- 三道密封系列
- 型材壁厚A类及B类
标准门窗K值
单位:W/m2.K
玻璃厚度
- 22/24 mm
玻璃配置
- 5dsLow-E+12/14Ar+5
玻璃K值
- 1.40 W/m2·K
颜色选择
标准白色

白色
覆膜

苔绿色

深橡木色

金橡木色

花梨木色

烟灰色






